| Вариант исполнения | Дизельные генераторы в шумозащитном кожухе | |
| Количество фаз | Трёхфазные дизельные генераторы (380 В) | |
| Автозапуск | Автоматический запуск | |
| Мобильность | Стационарные дизельные генераторы | 
| Двигатель 
 Число и расположение цилиндров: 4, рядное, вертикальное Рабочий объем, л: 4,75 Диаметр цилиндра и ход поршня, мм: 110/125 Степень сжатия: 17 Удельный расход топлива, г/кВт·ч (г/л.с.·ч): 210 () Мощность, кВт: 74 Частота вращения, об/мин: 1500 Максимальный крутящий момент, Н·м: 490,2 Частота вращения при максимальном крутящем моменте, об/мин: 1500 Масса, кг: 440 Габаритные размеры, мм: 966 х 679 х 968 | ММЗ Д-246.4 | 
| Генератор | Leroy Somer TAL, Linz PRO 18LF/4, ГС250-50/4 | 
| Основная мощность Основная мощность (Prime power) — в соответствии с ГОСТ 13822-82. В течение 1 часа допускается нагрузка до 110% основной (номинальной) мощности. Между перегрузками должен быть перерыв, необходимый для установления нормального теплового режима. Суммарная наработка в режиме 10% перегрузки не должна превышать 10 % времени, отработанного дизельным двигателем с начала эксплуатации или после ремонта. | 50 кВт / 62,5 кВА | 
| Резервная мощность Резервная мощность (Stand-by power) — в соответствии с ГОСТ 10150-88. Годовая наработка не должна превышать 500 моточасов. Перегрузки недопустимы. | 55 кВт /68,75 кВА | 
| Краткое описание | Скачать pdf | 
Электроагрегат дизельный АД-50 может стать одной из эффективных составляющих строительного или промышленного объекта. Предназначение этой электростанции состоит в том, чтобы обеспечивать трехфазный ток частотой 50Гц и напряжением 400В.
Такие электроагрегаты подходят для работы в качестве резервного и основного источников энергоснабжения. Как основной источник они могут использоваться в вахтовых поселках и других отдаленных от центральных линий электропередач поселениях, на буровых установках, на месторождениях. Как резервный источник АД-50 послужит на промышленных и гражданских объектах, которые важно обеспечить бесперебойной подачей электроэнергии: медицинские и спасательные центры, офисы и банки, гостиницы и школы, и так далее.
Эти дизельные электростанции отличаются высокой эффективностью и надежностью. Их комплектация позволяет им работать в непростых условиях и выдерживать ударные нагрузки, а также кратковременные перегрузки до 300%. На производстве дизельных электроагрегатов АД-50 мы используем наработки и опыт зарубежных коллег в сочетании с собственными идеями и технологиями. Это позволяет добиться прекрасных результатов.
https://www.dizelkompleks.ru/uploads/20171004/x50.jpg.pagespeed.ic.INIXLVpd6S.jpg
| ОСНОВНЫЕ ХАРАКТЕРИСТИКИ | |
|---|---|
| Основная мощность 1 | 50 кВт / 62,5 кВА | 
| Резервная мощность 2 | 55 кВт /68,75 кВА | 
| Род тока | Переменный | 
| Номинальное напряжение, В | 400 | 
| Номинальная частота, Гц | 50 | 
| Номинальный коэффициент мощности (cos f) | 0.8 | 
| Частота вращения вала двигателя, мин-1 | 1500 | 
| Заправочные емкости, л: | |
| Система топливопитания | 150 | 
| Система охлаждения (радиатор и двигатель) | 17 | 
| Система смазки | 12 | 
| Расход топлива при 100% нагрузке, л | 16.3 | 
| Время автономной работы при 100% мощности, ч | 9.2 | 
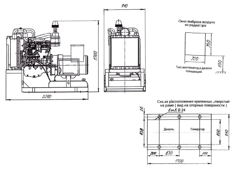
| Габаритные размеры открытого ДГ, мм дxшxв | 1980х1030х1700 | 
| Масса заправленного открытого ДГ , кг | 1100 | 
| Расход масла на угар, относительный (% от расхода топлива) | 0.06 | 
12 месяцев с момента ввода в эксплуатацию или 2000 моточасов в зависимости от того, какой срок наступит раньше.
1 Основная мощность (Prime power) – в соответствии с ГОСТ 13822-82. В течение 1 часа допускается нагрузка до 110% основной (номинальной) мощности. Между перегрузками должен быть перерыв, необходимый для установления нормального теплового режима. Суммарная наработка в режиме 10% перегрузки не должна превышать 10 % времени, отработанного дизельным двигателем с начала эксплуатации или после ремонта.
2 Резервная мощность (Stand-by power) – в соответствии с ГОСТ 10150-88. Годовая наработка не должна превышать 500 моточасов. Перегрузки недопустимы.
3 Расход топлива указан для различных нагрузок (100%, 75% и 50% относительно основной мощности), при плотности дизельного топлива 0,84 кг/литр, с синхронным генератором.
| Модель ДЭС | Фото | Основная мощность | Вариант исполнения | Фазность | Автозапуск | Назначение | Мобильность | Цена с НДС | 
|---|---|---|---|---|---|---|---|---|
| Электроагрегат дизельный АД-50 ORS (ММЗ Д-246.4) |   | 50 кВт / 62,5 кВА | Открытые дизельные генераторы | Трёхфазные дизельные генераторы (380 В) | Нет | 
 | Стационарные дизельные генераторы | 1050000 Р | 
| Купить | Сравнить Сравнить | Дата доставки? 14.11.2025 в Ярославле | ||||||
| Электроагрегат дизельный АД-50 KSAH (ММЗ Д-246.4) |   | 50 кВт / 62,5 кВА | Дизельные электрогенераторы “Север” в контейнере | Трёхфазные дизельные генераторы (380 В) | Автоматический запуск | 
 | Передвижная дизельная электростанция на шасси | 1830000 Р | 
| Купить | Сравнить Сравнить | Дата доставки? 14.11.2025 в Ярославле | ||||||
| Электроагрегат дизельный АД-50 KSAL (ММЗ Д-246.4) |   | 50 кВт / 62,5 кВА | Дизельные электрогенераторы “Север” в контейнере | Трёхфазные дизельные генераторы (380 В) | Автоматический запуск | 
 | Генераторная установка на салазках | 1830000 Р | 
| Купить | Сравнить Сравнить | Дата доставки? 14.11.2025 в Ярославле | ||||||
| Электроагрегат дизельный АД-50 KSAS (ММЗ Д-246.4) |   | 50 кВт / 62,5 кВА | Дизельные электрогенераторы “Север” в контейнере | Трёхфазные дизельные генераторы (380 В) | Автоматический запуск | 
 | Стационарные дизельные генераторы | 1680000 Р | 
| Купить | Сравнить Сравнить | Дата доставки? 14.11.2025 в Ярославле | ||||||
| Электроагрегат дизельный АД-50 KSRH (ММЗ Д-246.4) |   | 50 кВт / 62,5 кВА | Дизельные электрогенераторы “Север” в контейнере | Трёхфазные дизельные генераторы (380 В) | Нет | 
 | Передвижная дизельная электростанция на шасси | 1750000 Р | 
| Купить | Сравнить Сравнить | Дата доставки? 14.11.2025 в Ярославле | ||||||
| Электроагрегат дизельный АД-50 KSRL (ММЗ Д-246.4) |   | 50 кВт / 62,5 кВА | Дизельные электрогенераторы “Север” в контейнере | Трёхфазные дизельные генераторы (380 В) | Нет | 
 | Генераторная установка на салазках | 1750000 Р | 
| Купить | Сравнить Сравнить | Дата доставки? 14.11.2025 в Ярославле | ||||||
| Электроагрегат дизельный АД-50 KSRS (ММЗ Д-246.4) |   | 50 кВт / 62,5 кВА | Дизельные электрогенераторы “Север” в контейнере | Трёхфазные дизельные генераторы (380 В) | Нет | 
 | Стационарные дизельные генераторы | 1600000 Р | 
| Купить | Сравнить Сравнить | Дата доставки? 14.11.2025 в Ярославле | ||||||
| Электроагрегат дизельный АД-50 OAS (ММЗ Д-246.4) |   | 50 кВт / 62,5 кВА | Открытые дизельные генераторы | Трёхфазные дизельные генераторы (380 В) | Автоматический запуск | 
 | Стационарные дизельные генераторы | 1130000 Р | 
| Купить | Сравнить Сравнить | Дата доставки? 14.11.2025 в Ярославле | 
Наша компания заказала в компании,дизельный генератор АД 16Квт. Были приятно удивлены (перебрали кучу сайтов), высокое качество, справедливые цены, доставили в срок, оперативно -Надёжный поставщик.
Сообщите, пожалуйста, удобное время для связи.
        
        Наши специалисты смогут перезвонить Вам с 9 до 18 по московскому времени.