4 дизельных электроагрегата для резервного питания посёлка в Тюменской области
Апрель 2018
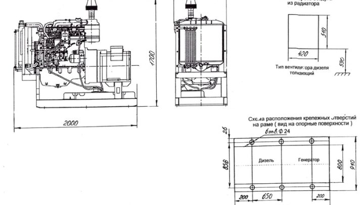
Дизельная электростанция для животноводческого комплекса в Иркутской области
Март 2018
Дизельная электростанция мощностью 200 кВт для Детского спортивного комплекса в гор.Анапа
Февраль 2018
2 дизельных электростанции для Компании «Салым Петролеум Девелопмент Н.В.»
Февраль 2018
Поставка агрегата мощностью 150 кВт в контейнерном исполнении для нужд ГУП МО «КС МО»
Декабрь 2017
Дизельный генератор мощностью 150 кВт для нужд администрации Красноселькупского района, ЯНАО
Ноябрь 2017
Электроагрегат дизельный мощностью 30 кВт для ресурсоснабжающей организации
Ноябрь 2017
Передвижные капоты на лыжах
Дизельная электростанция как и любое другое оборудование должна эксплуатироваться либо в закрытом помещении, либо в специальном капоте или кожухе. Для…
История появления дизельных электростанций
Системы, производящие переменный ток, в самых простых своих видах начали появляться со времён открытия магнитной индукции электрического тока Майклом Фарадеем…
Отгрузим электроагрегаты в течение 1 рабочего дня!
Предлагаем готовые электроагрегаты мощностью от 20 до 315 кВт. Электростанции находятся на нашем складе, обкатаны, испытаны и полностью готовы к…
Результаты проведения специальной оценки условий труда сотрудников ООО ПО Комплекс
В соответствии с требованиями пункта 6 статьи 15 Федерального закона № 426 от 28.12.2013 г. «О специальной оценке условий труда»…
Что такое система возбуждения с постоянными магнитами PMG и чем она отличается от других
В настоящее время при производстве дизельных электростанций используются три варианта систем возбуждения: SHUNT, AREP и PMG. Использование постоянных магнитов в…
Как правильно выбрать дизельную электростанцию?
Выбор дизельной электростанции – дело ответственное. Грамотный подбор автономного источника электроэнергии включает в себя множество параметров, без учёта которых невозможно…
Линейка стандартных газопоршневых электростанций
Ни для кого не секрет, что газовые электростанции имеют массу преимуществ относительно дизельных. В первую очередь это низкая стоимость топлива…
Мы расширяем ассортимент электростанций!
Мы с радостью сообщаем Вам, что ассортимент производимых нами электростанций становится всё больше. Сегодня мы можем предложить к поставке не…
Мы открыли первую версию сайта
Сайт готовится к запуску. На нашем сайте планируется опубликовать материалы о дизельных, газовых электростанциях и сопутствующих товарах. Также мы планируем…